C/ Cristòfor Colom 37 bajos, 07691 Porto Petro, Mallorca
Sale
€299.000







This exceptional rural plot is offered in Felanitx, set in a peaceful and private natural environment, with a surface area of almost 50,000 m². The property is sold with a granted building licence and an approved architectural project for the construction of a single-family home with swimming pool, allowing construction to begin without administrative uncertainty.
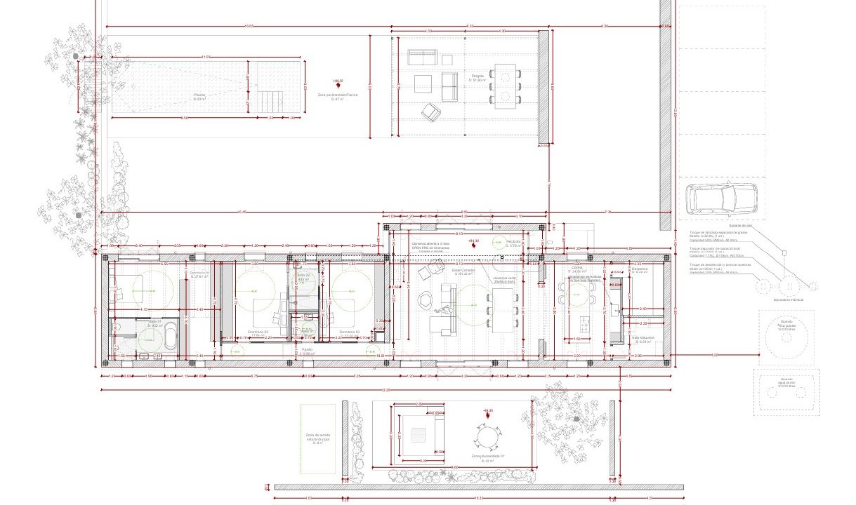
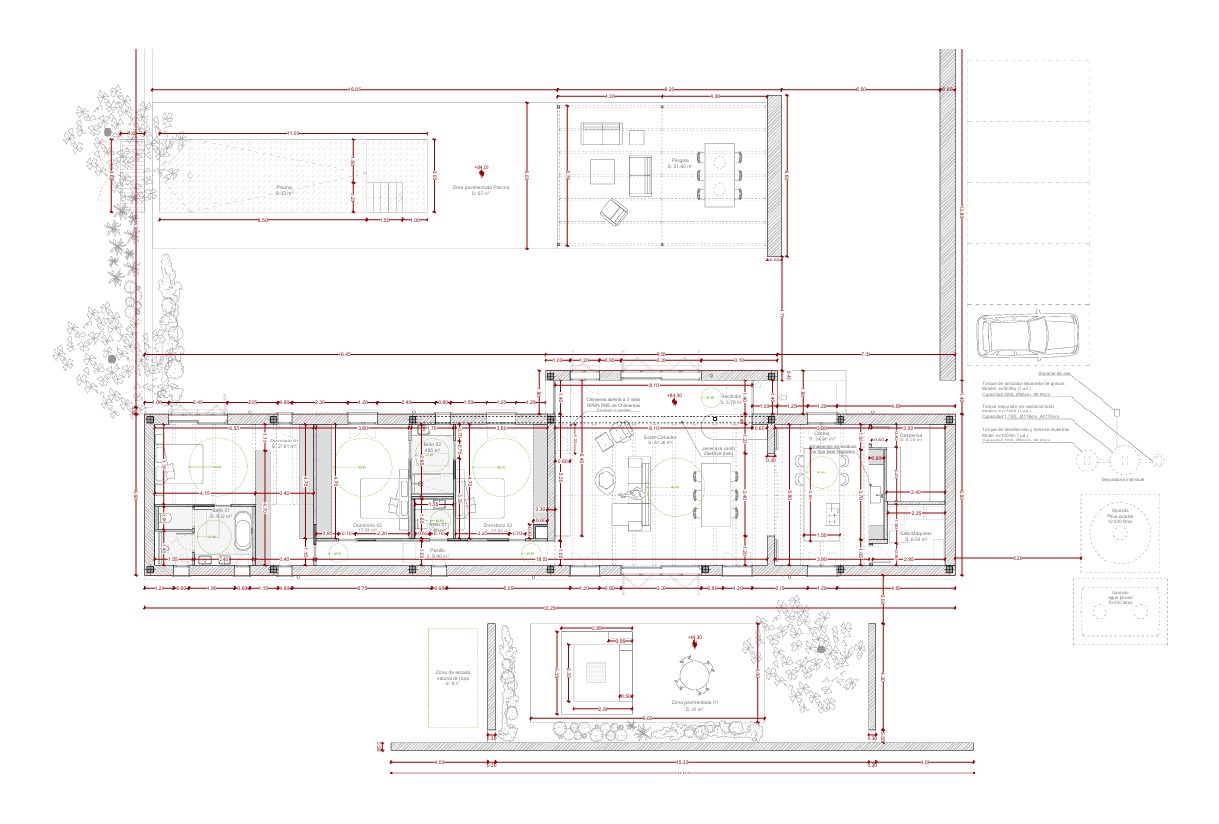
The approved project foresees a single-storey villa with a planned built area of 236 m², designed to offer generous living spaces, comfort and seamless integration into the surrounding landscape. The layout includes a spacious living and dining area, an independent kitchen, three double bedrooms, two full bathrooms and a guest toilet, as well as outdoor areas conceived to enjoy the Mediterranean lifestyle, including a swimming pool, pergola and landscaped gardens. A private cinema room is also planned.
The architectural proposal incorporates modern standards of energy efficiency and sustainability, including aerothermal climate control, ducted air conditioning, double-flow ventilation, a photovoltaic system with batteries for self-consumption and a certified wastewater treatment system, all in compliance with current planning regulations and landscape integration requirements.
A rare opportunity to acquire a high-value plot in Mallorca with legal certainty and develop a bespoke home in a privileged rural setting, combining privacy, nature and long-term investment potential.
Users Today : 21
Users Yesterday : 12
Users Last 7 days : 173
Users Last 30 days : 487
Users This Month : 236
Users This Year : 1325
Total Users : 8857
Views Today : 60
Views Yesterday : 17
Views Last 7 days : 443
Views Last 30 days : 1562
Views This Month : 600
Views This Year : 5033
Total views : 50074
Who's Online : 0
Your IP Address : 18.97.9.98
Server Time : 2026-03-13Owning a home is a keystone of wealth… both financial affluence and emotional security.
Suze Orman
