C/ Gomez Ulla Santanyi, Mallorca
zum Verkauf
€545.000









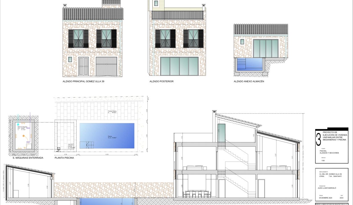
Im Herzen des beliebten und authentischen mallorquinischen Ortes Santanyí gelegen, bietet dieses 232 m² große Grundstück eine außergewöhnliche Gelegenheit, ein maßgeschneidertes Einfamilienhaus zu bauen. Für das Grundstück liegt ein gültiger Bauplan und eine Baugenehmigung für ein 280 m² großes Wohnhaus mit privatem Pool vor.
Käufer haben die Flexibilität, das Projekt selbst durchzuführen oder sich für eine schlüsselfertige Option zu entscheiden, bei der ein vollständig fertiggestelltes Haus übergeben wird.
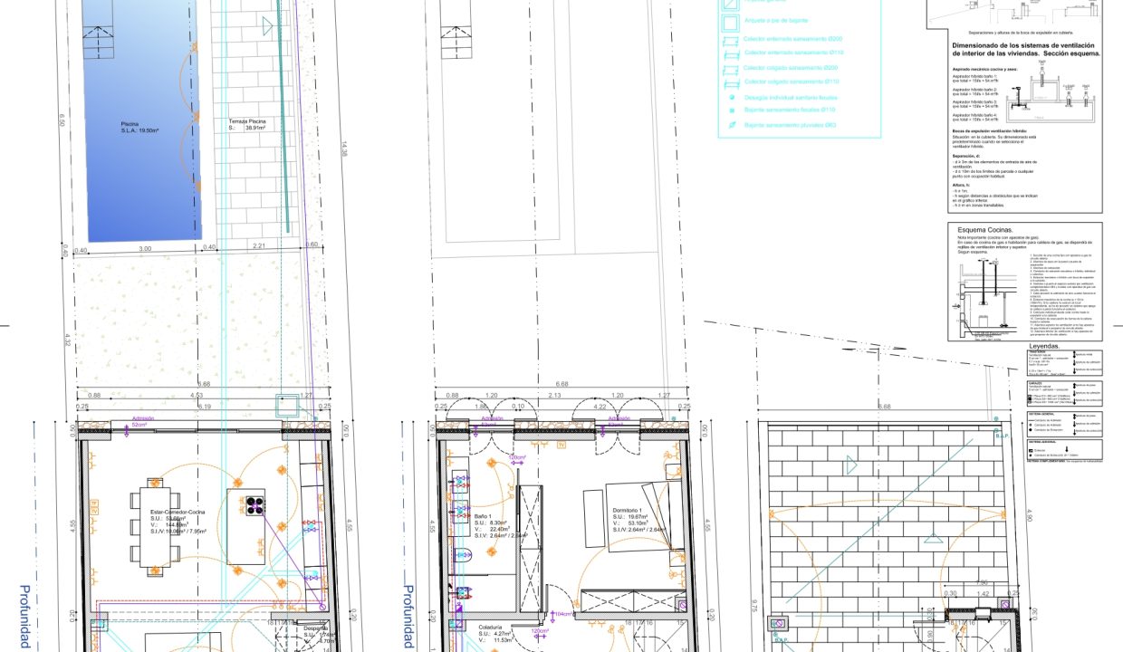
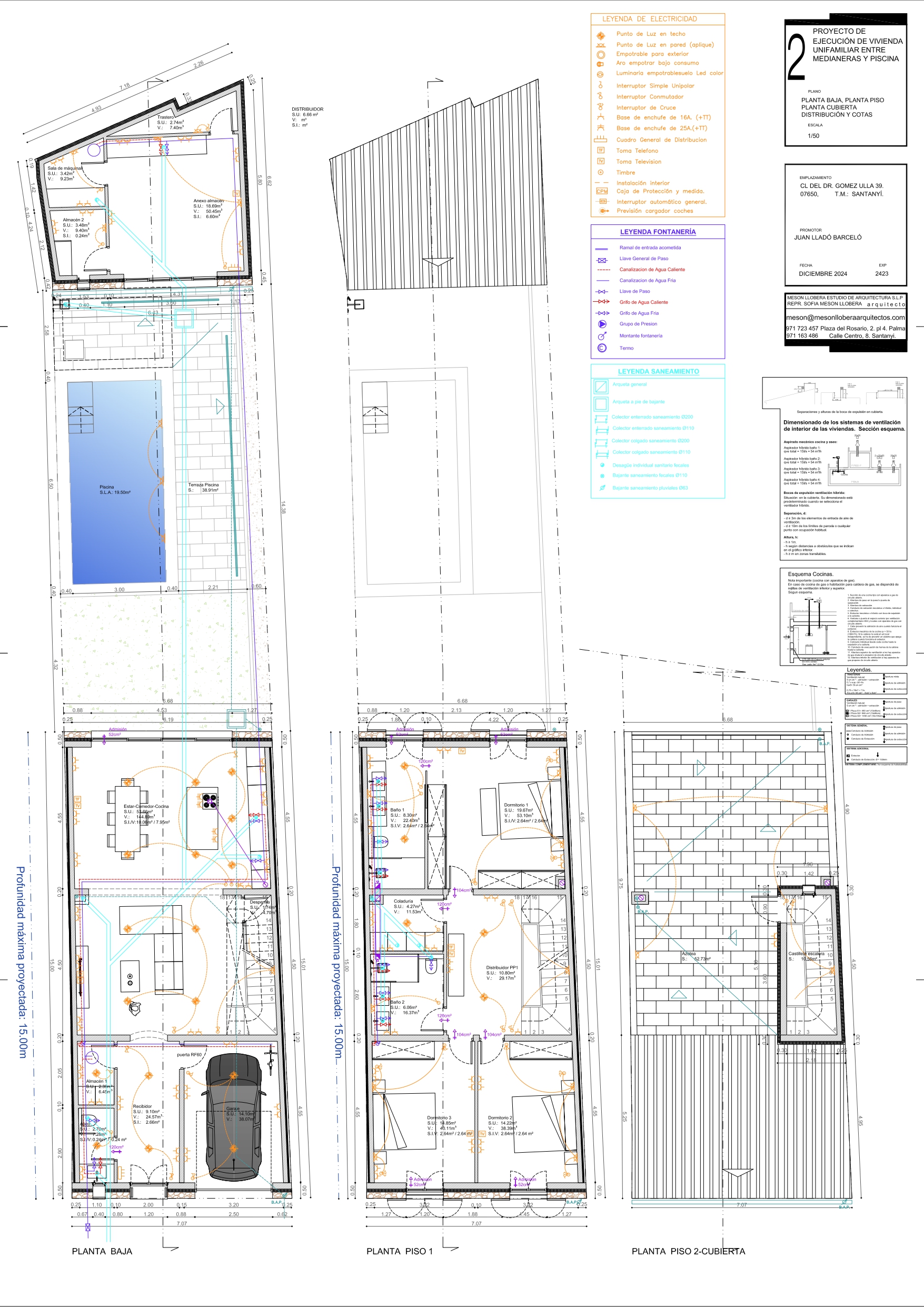
Der vorgeschlagene Entwurf sieht ein zweistöckiges Haus mit einer großzügigen und modernen Aufteilung vor:
Erdgeschoss: große offene Küche und Esszimmer, separates Wohnzimmer, gemütlicher Eingangsbereich mit Gästetoilette und private Garage.
Erster Stock: zwei Doppelschlafzimmer, ein geräumiges Familienbadezimmer, eine Waschküche und eine luxuriöse Master-Suite mit eigenem Bad.
Das Leben im Freien ist das Herzstück dieses Hauses, mit einem 20 m² großen Pool und einer fast 40 m² großen Terrasse neben dem Pool, die sich perfekt zum Entspannen oder Genießen der mallorquinischen Sonne eignet.
Nur wenige Schritte vom lebhaften Wochenmarkt von Santanyí, charmanten Cafés und Boutiquen entfernt, bietet dieses Projekt die ideale Kombination aus authentischem Dorfleben und modernem mediterranem Komfort.
Kontaktieren Sie uns hier bei 360 Mallorca Property, um alle Informationen zu erhalten und mehr über die schlüsselfertige Option zu erfahren.
Users Today : 2
Users Yesterday : 32
Users Last 7 days : 110
Users Last 30 days : 495
Users This Month : 446
Users This Year : 2195
Total Users : 9727
Views Today : 21
Views Yesterday : 166
Views Last 7 days : 911
Views Last 30 days : 2217
Views This Month : 2096
Views This Year : 7924
Total views : 52965
Who's Online : 0
Your IP Address : 216.73.217.144
Server Time : 2026-04-29Owning a home is a keystone of wealth… both financial affluence and emotional security.
Suze Orman

