Cami de sa cova den cabrer
Exclusivo, Venta
€550.000













Esta excepcional parcela está situada en la tranquila zona de Son Sans, entre los encantadores pueblos de S’Alqueria Blanca y Santanyí, y ofrece una oportunidad única para construir una preciosa casa de campo en uno de los lugares más codiciados del sureste de Mallorca.
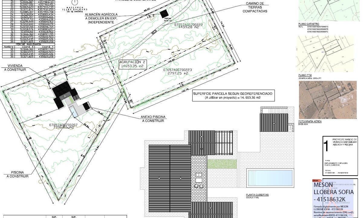
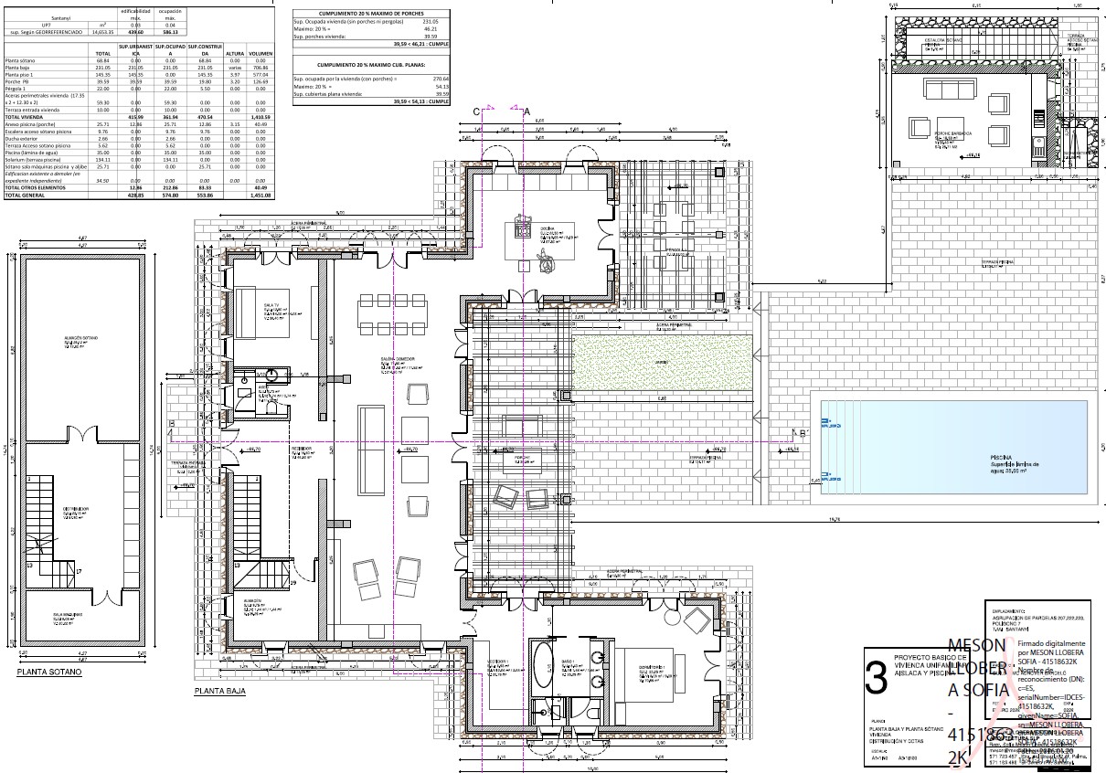
La parcela tiene una superficie de 14 635 m² y ofrece unas vistas panorámicas del campo con vistas lejanas al mar: un entorno tranquilo y privado rodeado de naturaleza.
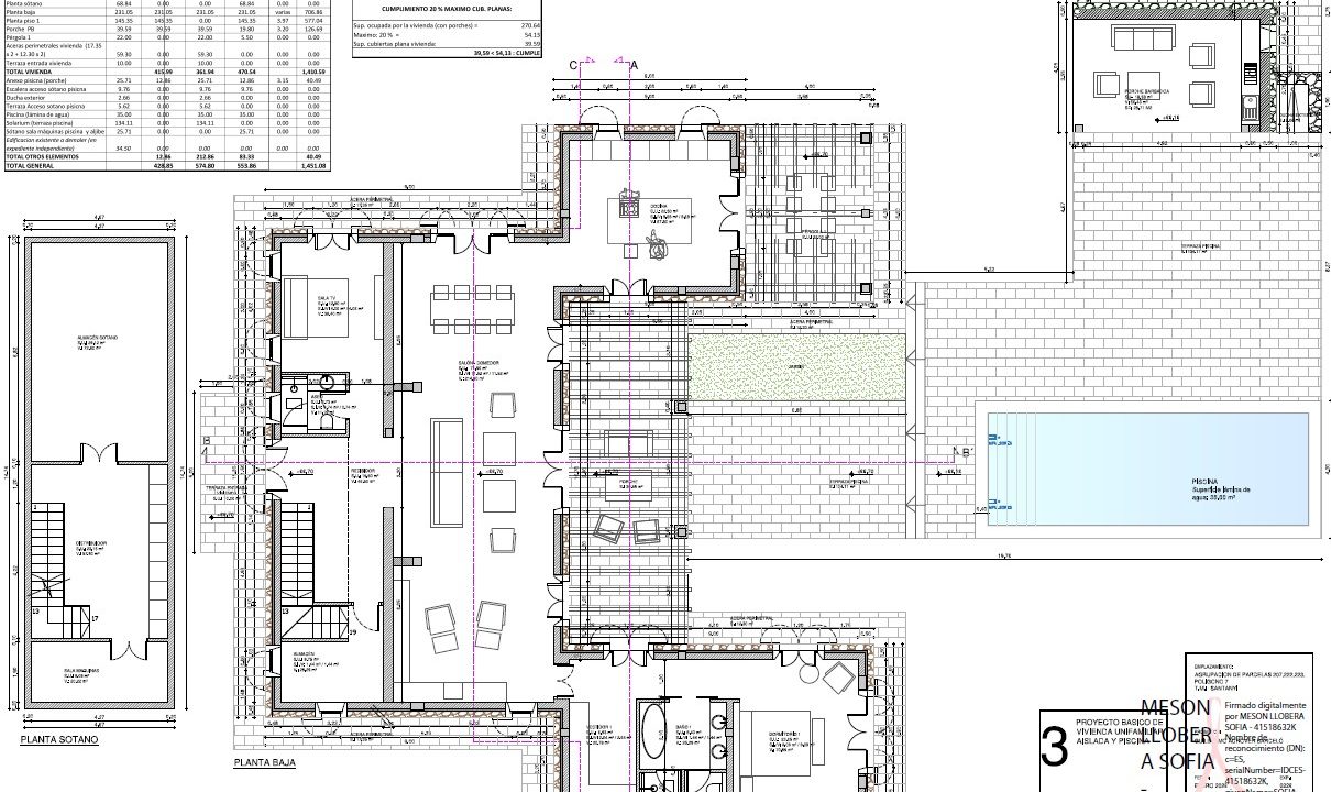
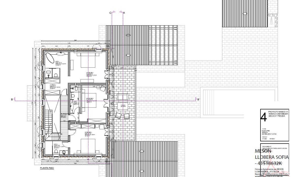
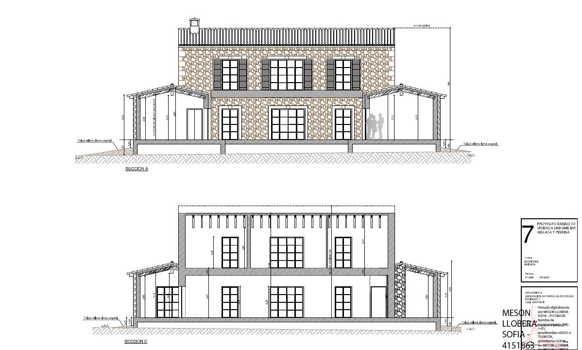
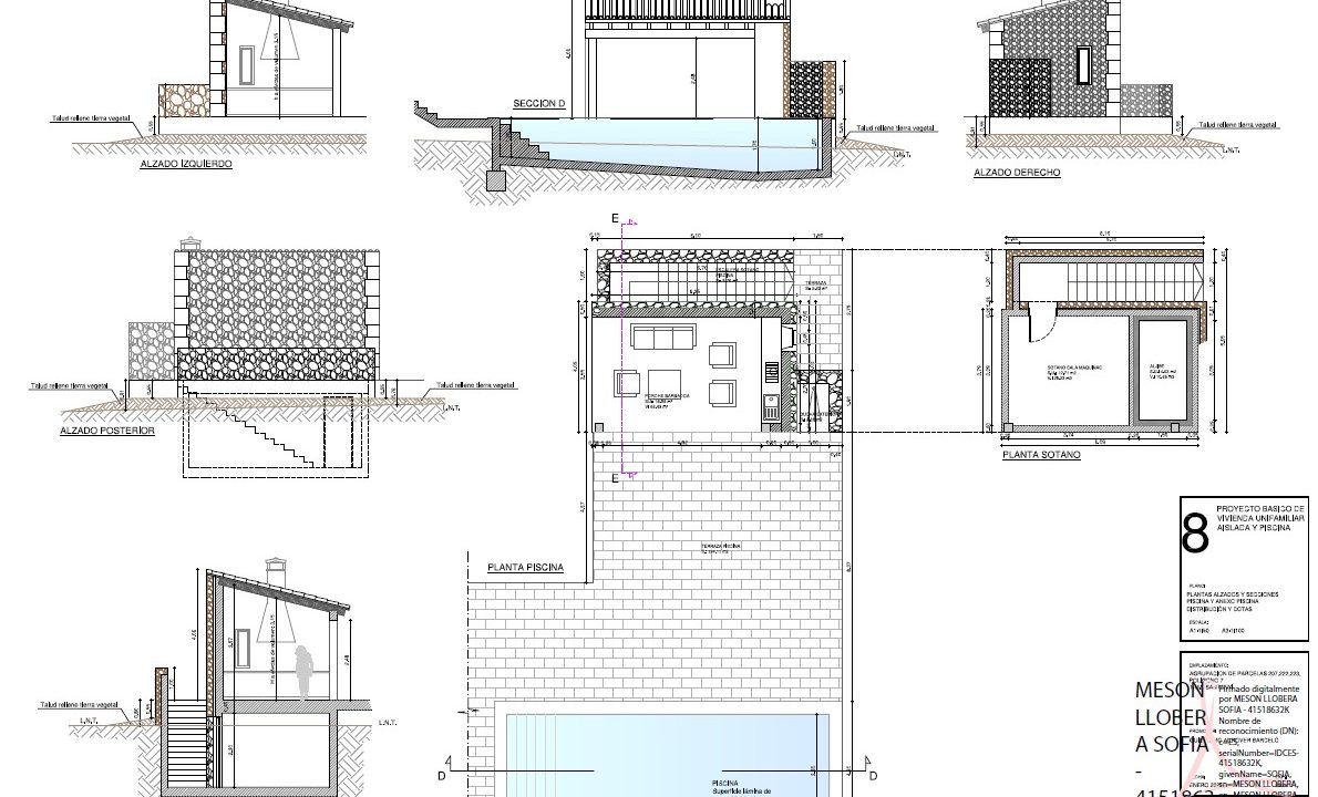
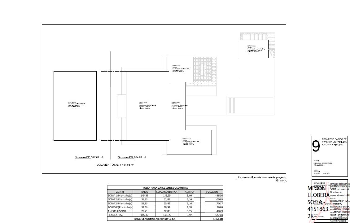
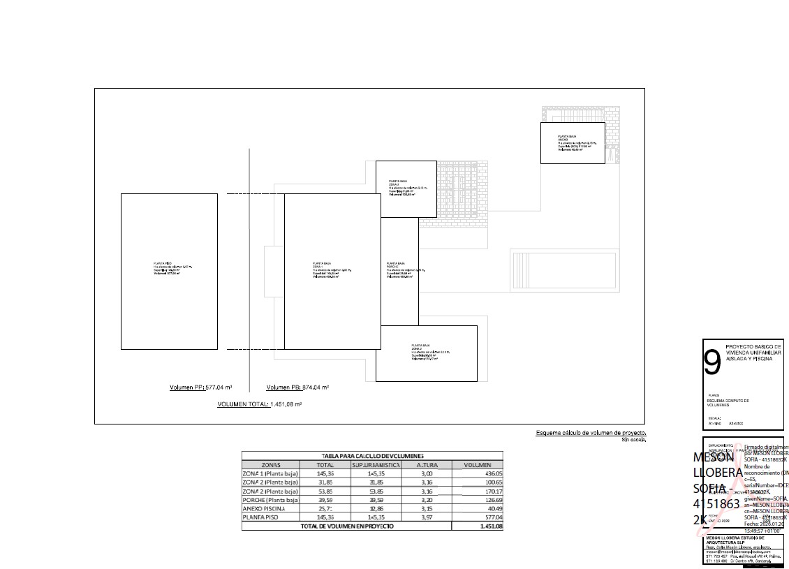
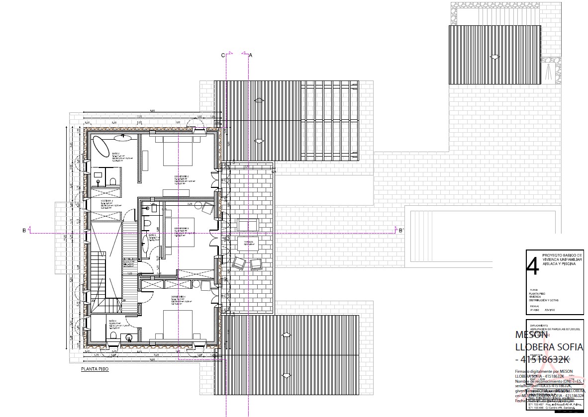
Se ha presentado una solicitud de licencia de obras al Consell de Mallorca para su aprobación, en la que se propone la construcción de una elegante villa de dos plantas con una superficie habitable de 470 m² y una superficie construida total de 607 m², que incluye amplias terrazas, una piscina y un sótano.
El diseño combina el confort moderno con el estilo mediterráneo y aprovecha al máximo la orientación de la parcela, las vistas y el entorno tranquilo.
Se trata de una oportunidad ideal para crear una lujosa residencia de campo cerca de las playas, los restaurantes y los servicios de Santanyí, al tiempo que se disfruta de la privacidad de la Mallorca rural.
Users Today : 2
Users Yesterday : 32
Users Last 7 days : 110
Users Last 30 days : 495
Users This Month : 446
Users This Year : 2195
Total Users : 9727
Views Today : 22
Views Yesterday : 166
Views Last 7 days : 912
Views Last 30 days : 2218
Views This Month : 2097
Views This Year : 7925
Total views : 52966
Who's Online : 1
Your IP Address : 216.73.217.144
Server Time : 2026-04-29Owning a home is a keystone of wealth… both financial affluence and emotional security.
Suze Orman

