C/ Varques Ruta de las Calas Nº 1. Manacor 07500
Sale
€650.001







Located in the tranquil countryside of southeast Mallorca, this exclusive rural plot presents an intriguing development project in one of the most coveted locations on the island. With an ideal location just 5 minutes from the famous Rafa Nadal Academy, the pristine beaches of Cala Varques and Cala Romantica, and the picturesque coastal town of Porto Cristo, this home seamlessly blends tranquility and solitude with easy access to all amenities.
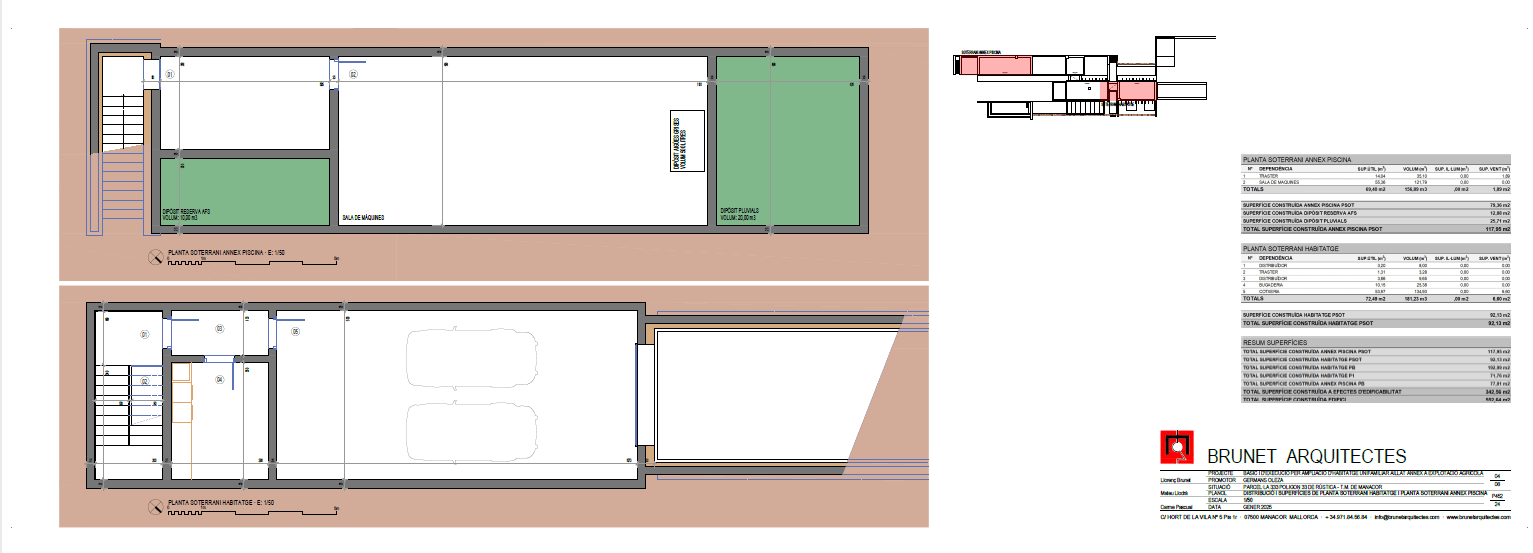
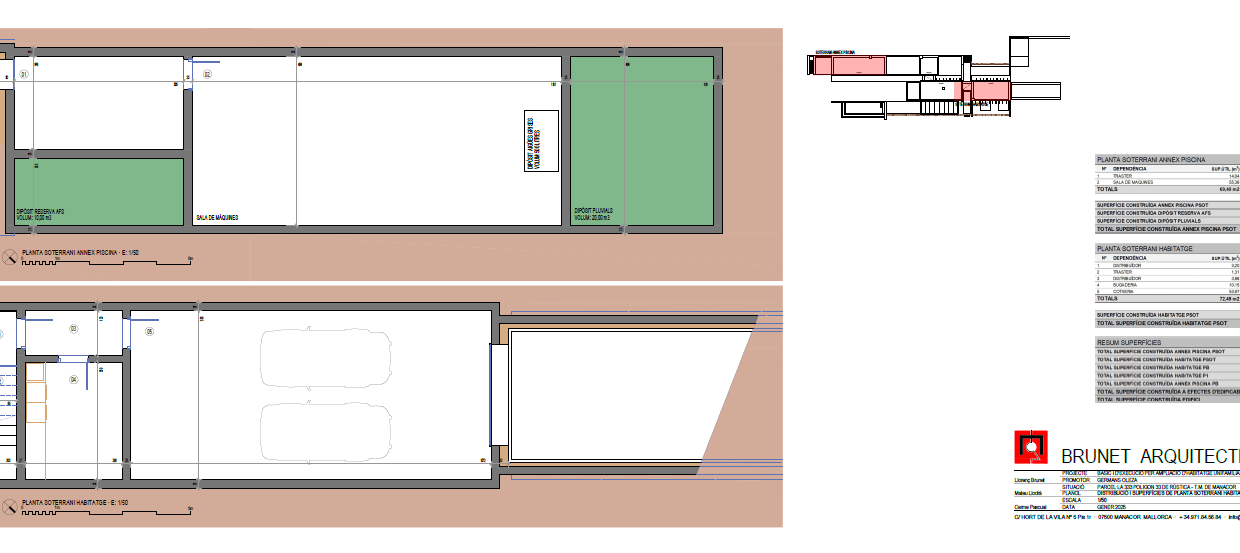
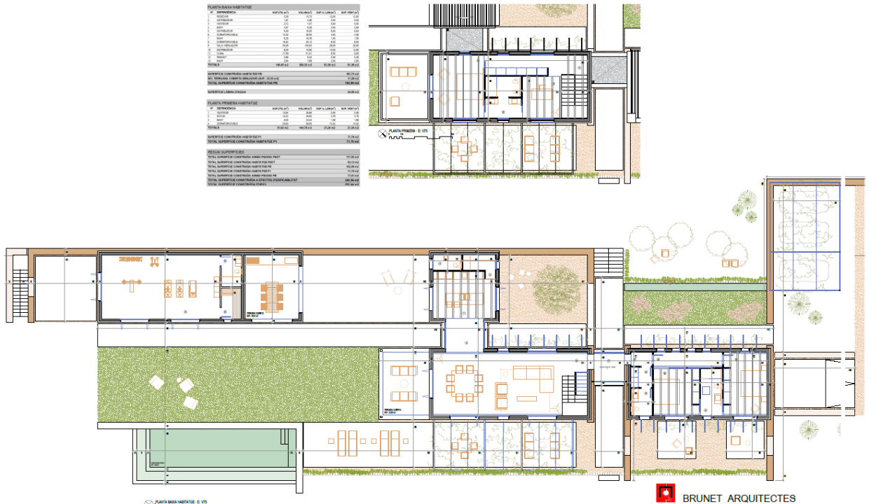
The project has a total planned construction area of 552 sqm, including 342 sqm of living space designed for modern comfort and Mediterranean living. From its elevated position, the property will enjoy stunning 180° sea views, as well as the natural beauty of the Mallorcan countryside.
This is a unique opportunity to create the home of your dreams in an exclusive and peaceful setting, just minutes away from the best beaches, schools, and attractions on the island. Feel free to contact us, at 360 Mallorca Property, for more information or to explore our turnkey option.
Users Today : 5
Users Yesterday : 27
Users Last 7 days : 129
Users Last 30 days : 558
Users This Month : 159
Users This Year : 6751
Total Users : 7255
Views Today : 9
Views Yesterday : 66
Views Last 7 days : 402
Views Last 30 days : 2296
Views This Month : 521
Views This Year : 40064
Total views : 44016
Who's Online : 0
Your IP Address : 77.75.76.161
Server Time : 2025-12-10Owning a home is a keystone of wealth… both financial affluence and emotional security.
Suze Orman

