Cami de sa cover den cabrer
Exclusive, Sale
€650.000










Located in the peaceful area of Son Sans, between the charming villages of S’Alqueria Blanca and Santanyí, this exceptional plot offers a rare opportunity to build a beautiful countryside home in one of southeast Mallorca’s most desirable locations.
The property comprises 15,285 m² of land and enjoys open countryside views with distant sea views, providing a tranquil and private setting surrounded by nature.
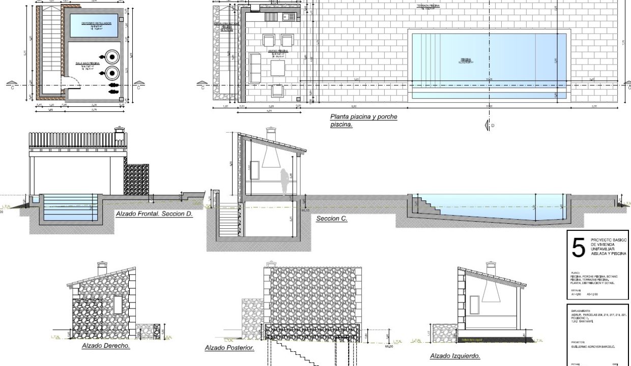
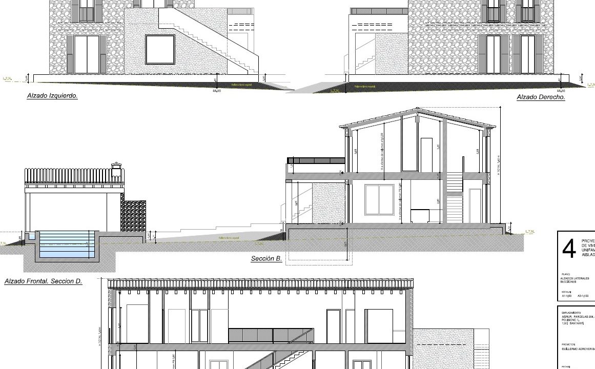
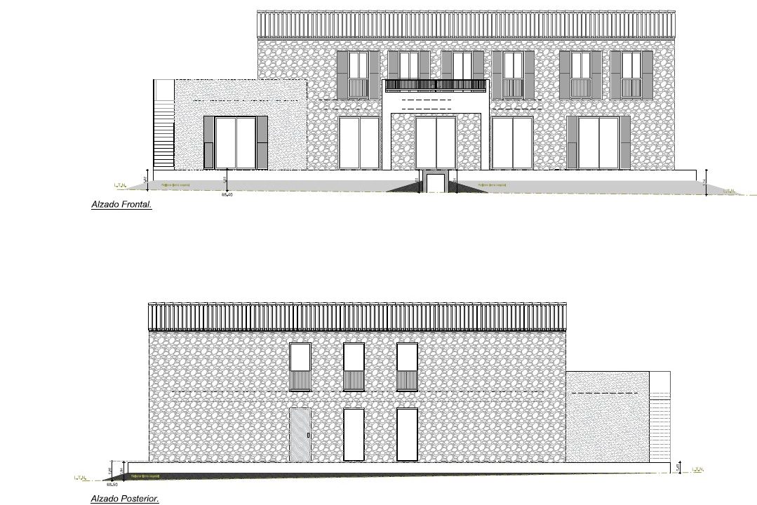
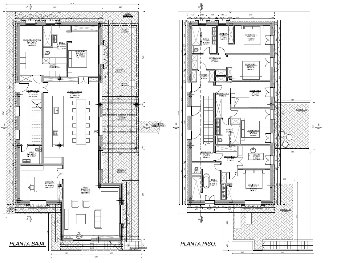
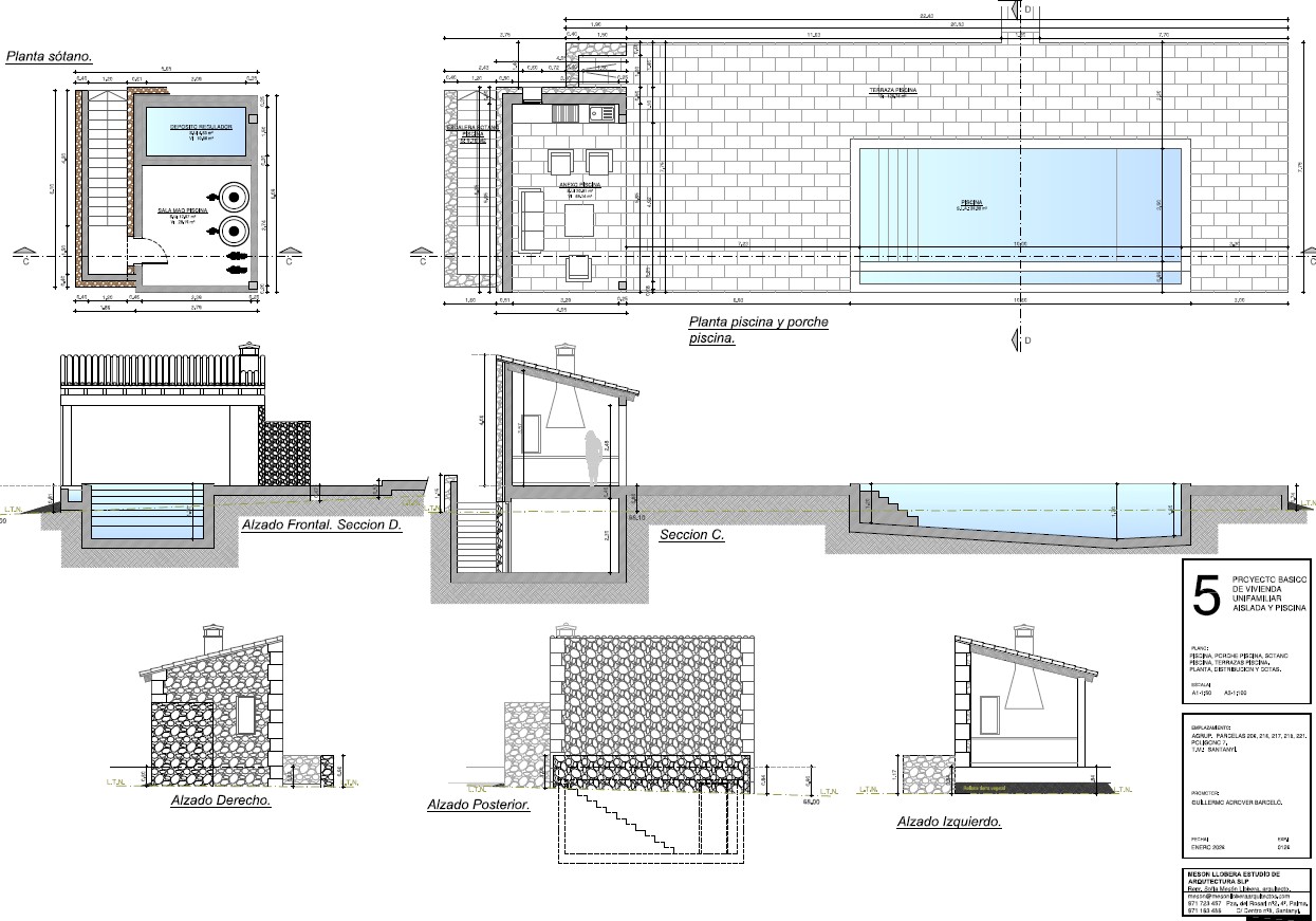
A project has been submitted to the Consell de Mallorca for approval to construct an elegant two-storey villa with a living area of 393 m² and a total built area of 533 m², including spacious terraces and a swimming pool.
The design combines modern comfort with Mediterranean style, making the most of the plot’s orientation, views, and peaceful surroundings.
This is an ideal opportunity to create a luxury countryside residence close to the beaches, restaurants, and amenities of Santanyí while enjoying the privacy of rural Mallorca.
Users Today : 2
Users Yesterday : 32
Users Last 7 days : 110
Users Last 30 days : 495
Users This Month : 446
Users This Year : 2195
Total Users : 9727
Views Today : 15
Views Yesterday : 166
Views Last 7 days : 905
Views Last 30 days : 2211
Views This Month : 2090
Views This Year : 7918
Total views : 52959
Who's Online : 0
Your IP Address : 216.73.217.144
Server Time : 2026-04-29Owning a home is a keystone of wealth… both financial affluence and emotional security.
Suze Orman

