es Carritxó, Felanitx, Migjorn, Islas Baleares, 07208, España
Sale
€650.000


















Situated between Es Carritxó and Cas Concos, this elevated rustic plot of 22,937 m² offers a privileged natural setting with beautiful open views over the countryside, the hills and the iconic San Salvador. Its elevated position provides privacy, light and a true sense of space, in one of the most authentic and peaceful areas of south-east Mallorca.
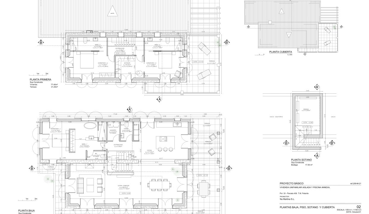
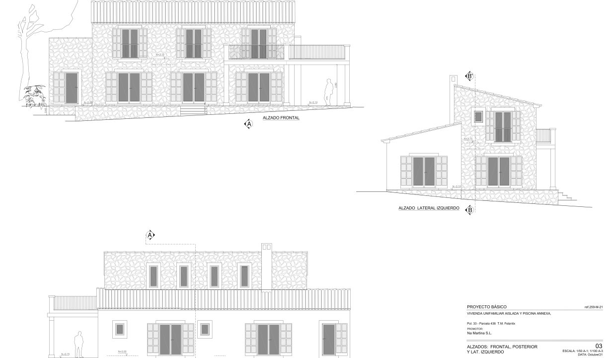
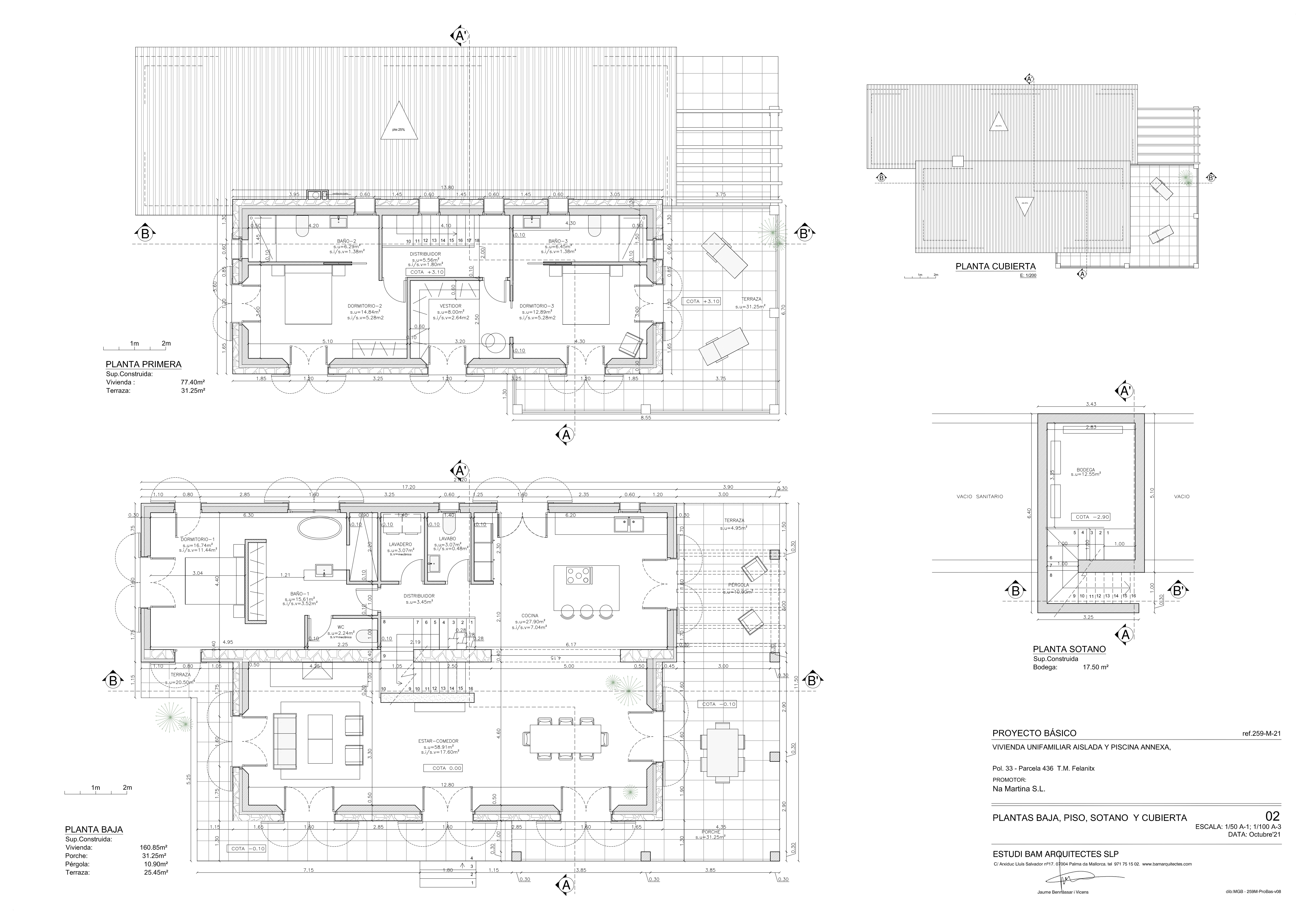
The property comes with an approved project for a spacious 270 m² family residence, designed with three bedrooms, three bathrooms, a double garage and a swimming pool, perfectly integrated into the landscape to enhance the Mediterranean lifestyle and outdoor living.
An exceptional opportunity to create a bespoke countryside home combining tranquillity, views and strategic location, just a short drive from Cas Concos, Felanitx and some of the island’s most beautiful beaches, making it ideal both as a private residence and as a long-term investment.
Users Today : 2
Users Yesterday : 32
Users Last 7 days : 110
Users Last 30 days : 495
Users This Month : 446
Users This Year : 2195
Total Users : 9727
Views Today : 8
Views Yesterday : 166
Views Last 7 days : 898
Views Last 30 days : 2204
Views This Month : 2083
Views This Year : 7911
Total views : 52952
Who's Online : 0
Your IP Address : 216.73.217.144
Server Time : 2026-04-29Owning a home is a keystone of wealth… both financial affluence and emotional security.
Suze Orman

