Diseminado Son Cotxer, 194, 07630, Campos, Balears (Illes), España
Sale
€375.000
















Set in the tranquil countryside between Campos and Felanitx, this exceptional rural plot of approximately 18,485 m² offers the opportunity to build a refined Mediterranean residence in one of the most authentic areas of the south-east of Mallorca.
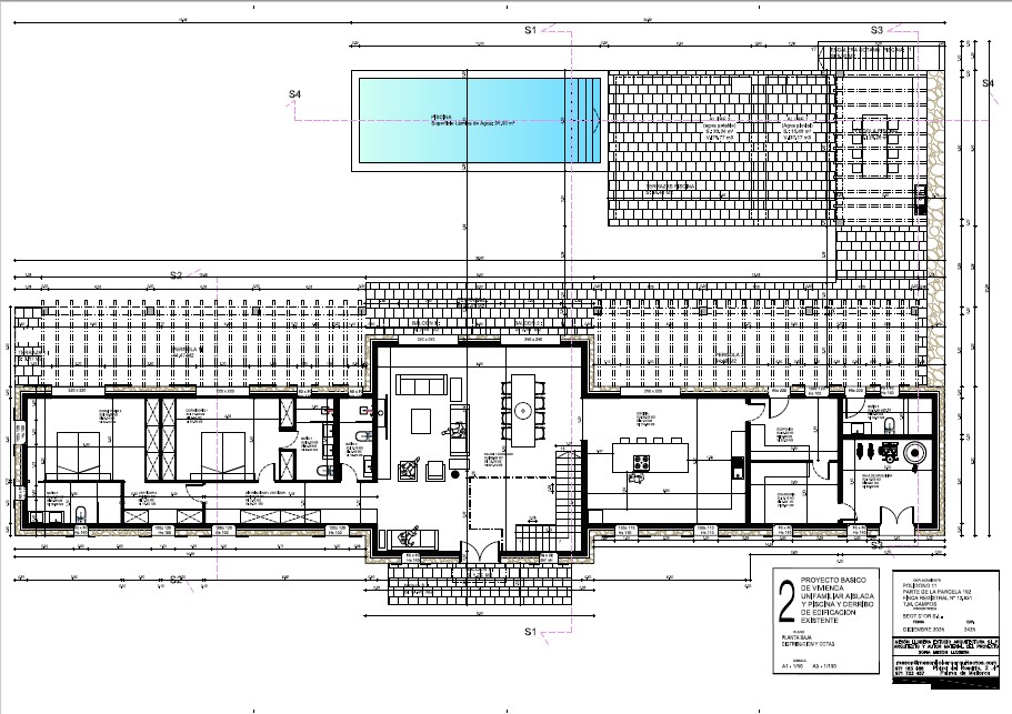
According to the georeferenced measurement, the plot comprises 18,485.73 m² and complies with current planning regulations, allowing a maximum buildability of 369.71 m² (2%) and a maximum occupation of 554.57 m² (3%), with an authorised volume of up to 1,500 m³.
An architectural project has been designed within these parameters and foresees a thoughtfully planned residence with a total projected constructed area of 386.87 m² for the main dwelling, distributed over ground and first floor. The ground floor is planned with 270.85 m² and the upper floor with 90.31 m², complemented by pergolas and terraces that enhance the Mediterranean lifestyle.
In addition, the project contemplates a swimming pool, technical room and exterior areas, resulting in a total projected constructed surface of 464.73 m² and a planned volume of 1,183.99 m³.
A rare opportunity to acquire a substantial rural plot with a defined architectural concept, offering privacy, space and the possibility to create a bespoke countryside residence close to Campos, Felanitx and the island’s most beautiful beaches.
Users Today : 21
Users Yesterday : 12
Users Last 7 days : 173
Users Last 30 days : 487
Users This Month : 236
Users This Year : 1325
Total Users : 8857
Views Today : 60
Views Yesterday : 17
Views Last 7 days : 443
Views Last 30 days : 1562
Views This Month : 600
Views This Year : 5033
Total views : 50074
Who's Online : 0
Your IP Address : 18.97.14.91
Server Time : 2026-03-13Owning a home is a keystone of wealth… both financial affluence and emotional security.
Suze Orman

